●提高了牙排体的强度,降低了噪音,活动牙、固定牙做出优化提升,可适于有叼口或无叼口工作。
●提高了侧拉规的强度,易损件的使用寿命得到充分的延长和保障。
●增强了输纸变速机构,使纸张定位更加准确,既保证厚纸的加工,又更加适用于薄纸。
●重新设计版框,采用吊版和卡版两用的多功能结构,可依据产品任意选择,换版更加快捷,使其更有利于后道加工,锁版加限位装置,装卸更加方便。
●前挡规采用伞齿传动调整方式,有利于提高机器的精准度,调节更加方便。
●侧定位采用操作面和传动面双向侧定位,操作面为固定侧定位,与常用的操作面侧拉规相适应,传动面为活动侧定位,采用导柱式,对侧面精度非常有利。
| 型号 | MYP-1060E |
| 最大输纸尺寸 | 1060×760mm |
| 最小输纸尺寸 | 400×370mm |
| 最大模切尺寸 | 1030×750mm |
| 最高运转速度 | 7500s/h |
| 最大工作压力 | 320T |
| 模切精度 | ±0.1mm |
| 给纸纸堆最大高度 | 1800mm |
| 收纸纸堆最大高度 | 1600mm |
| 纸张加工厚度 | 纸板(Cardboard):0.1-3mm 瓦楞纸(Corrugated board):≤4mm |
| 整机重量 | 18T |
| 整机总功率 | 18kw |
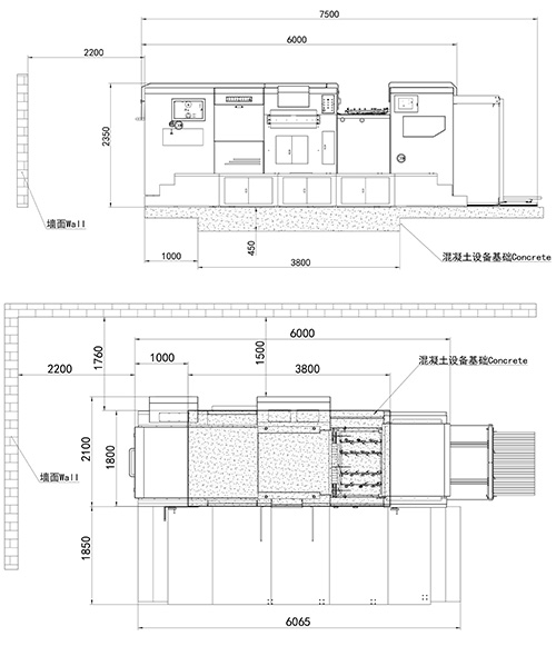
| 外形尺寸 | 7500×3950×2360mm |
| 气源要求(买方准备) | 0.8Mpa,>0.36m³/min |





