Fast系列型号产品属于高速系列机器,其优异的性能可以达到10000张/小时的速度,比传统模切机速度更快,精度准,性能稳定。采用全新电器控制系统,德国品牌主链条,瑞典品牌轴承,所有机芯材质处理技术和加工工艺均出自欧洲进口加工中心设备。从而保证机器高运转速度下的性能和稳定性。本机配备了一系列JIGUO品牌的高端功能:自动锁板,自动调前规,自动不停机副收纸卷帘,并特殊的油温制冷技术保障机芯润滑效果。完全满足高端客户的模切需求。适用于各种高级精细的精品礼盒包装制品,如:酒盒、烟盒、药盒、化妆品盒、礼品盒,等等。
| 型号 | MYP-1050 Fast |
| 最大输纸尺寸 | 1060×760mm |
| 最小输纸尺寸 | 400×360mm |
| 最大模切尺寸 | 1040×740mm |
| 最大运转速度 | 10000s/h |
| 模切精度 | ±0.1mm |
| 模切压力 | 350T |
| 纸张厚度 | 卡纸0.1~3mm 瓦楞纸≤4mm |
| 最小咬口 | 7mm |
| 给纸堆高度含托盘 | 1600mm |
| 收纸堆高度含托盘 | 1400mm |
| 电功率 | 21kw |
| 机器重量 | 19T |
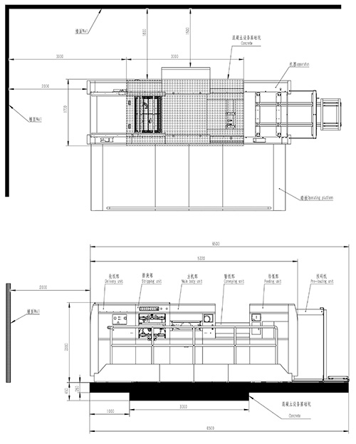
| 外形尺寸(含预装纸、踏台、刀库) | 7570×4140×2360mm |
| 气源要求(买方准备) | 0.8Mpa,>0.36m3/min |





